712 Fifth Avenue Office Rental Guide

Historic Context of 712 Fifth Avenue
As a condition for approving construction, the New York City Landmark commission required 712 Fifth Avenue to accommodate the landmark facades of the Coty and Rizzoli buildings on Fifth Avenue at the base of the tower. These buildings are now occupied by the Henri Bendel woman’s fashion store. For this reason the entrance to the office building is around the corner on West 56th Street.
Office Building & Design
Photo courtesy of Costar
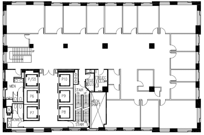
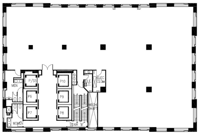
712 Fifth Avenue was constructed in 1990 and designed by Kohn Pedersen Fox Associates. Full floors in the base of the building are 13,000 square feet and taper to 9,100 square feet at the top. With four exposures there is a high window to floor area ratio. Both office intensive and open landscape designs are bright, attractive and efficient. Tower floors have panoramic views that include Central Park and lower Manhattan.
712 Fifth Avenue offers both turn-key fully constructed office suites that are ready for immediate occupancy and vacant spaces that it will build-to-suit for financially qualified Tenants. When an office is custom-built a 7- 10 year lease term is required. Sample offices are shown below:
Office Pricing at 712 Fifth Avenue
For 2018/19 the asking rent for offices range from $83.00 to $160.00 per rentable square foot (PSF) depending on the location in the building. Cogent Realty has a track record negotiating lower rents and other leasing incentives like free rent for its clients. Call us for details, 212-509-4049.
Your Corporate HQ at 712 Fifth Avenue
Class A office tower, constructed in 1990.
New entrance and lobby to be completed in 2019.
24-hour, 7- day access. Uniformed lobby concierge.
543,341 SF total building area. Concrete and steel construction. 52 stories tall and rising 650 feet.
11 passenger and one freight elevator.
Floors range from 9,100 to 13,000 RSF.
10 foot ceiling heights.
Central heating and air conditioning.
Messenger Center.
Telecom providers include Lightpath, Cogent, Verizon, Broadview, Globalcom and Cablevision.
Owned by Paramount Group Inc., a pubic REIT.
New York, NY 10019.
About Cogent Realty Advisors
Cogent Realty Advisors is an independent and licensed NO FEE Realtor with over 15 years of experience representing businesses that lease NYC office space. Our goal is to help you find the right office at the right price. For information, phone Mitchell Waldman at (212) 509-4049.
#712Fifth
The post 712 Fifth Avenue Office Rental Guide for Elite Firms appeared first on Rent NY Office.







No comments:
Post a Comment